€
EUR
£
GBP
$
USD
R$
BRL
BENI IMMOBILI
CHI SIAMO
BLOG
CONTATTI
More
BENI IMMOBILI
CHI SIAMO
BLOG
CONTATTI
0
0
€
EUR
£
GBP
$
USD
R$
BRL
Villa con piscina e vista mare, a 2 minuti dalla spiaggia
Aljezur, Espartal
ritornare
\
Villa con piscina e vista mare, a 2 minuti dalla spiaggia - Aljezur, Espartal
Quota Immobili
Facebook
X
Pinterest
WhatsApp
Copia link
Link copiado
Foglio di stampa
Invia la proprietà a un amico
Inserisci un nome
Inserisci una email
Si prega di inserire un indirizzo email valido
Inserisci un nome
Inserisci una email
Si prega di inserire un indirizzo email valido
Ho letto e accetto i termini e le condizioni stabiliti.
Saperne di più »
Per completare questa operazione è necessario leggere e accettare le nostre condizioni.
Campi richiesti *
Inviare
Fotos
Nome
Inserisci il tuo nome
E-mail
Inserisci la tua e-mail
Si prega di inserire un indirizzo email valido
Li e aceito a
Informativa sulla privacy
Per completare questa operazione è necessario leggere e accettare le nostre condizioni.
Inserire il codice dell'immagine
Codice
Inviare
Villa con piscina e vista mare, a 2 minuti dalla spiaggia
418.000 €
Ref:
VM1074
3
3
1
166 m²
Accogliente Villetta a 2 Minuti dalla Spiaggia di Monte Clérigo, con Vista Mare, in Complesso Residenziale con Piscina, nella Prestigiosa Zona di Espartal
Caratteristiche
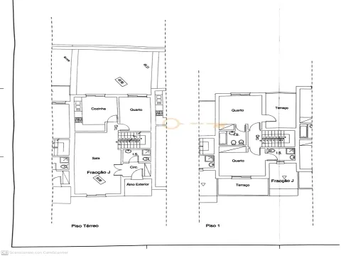
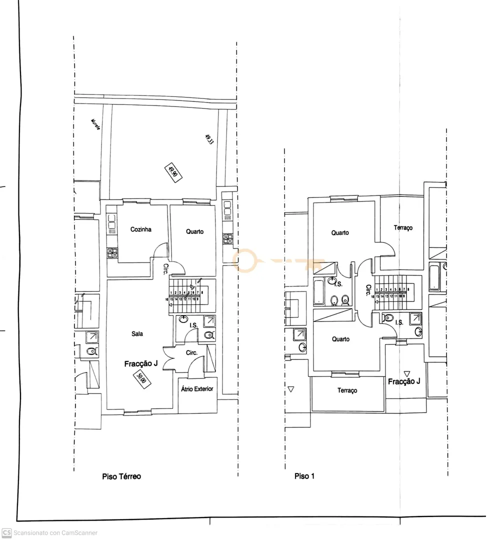
Questa incantevole villetta a schiera su due livelli offre 160 m² di superficie lorda con una distribuzione funzionale composta da tre camere da letto e tre bagni
Al piano terra troviamo un soggiorno con zona pranzo in open space e stufa a pellet italiana, cucina completamente attrezzata con accesso a un patio verde con vista sulle colline, una camera e un bagno
Al piano superiore: due camere da letto con bagno privato e balcone, di cui una con vista mare
Dispone inoltre di riscaldamento centralizzato, finestre basculanti con doppi vetri, garage privato interrato e accesso alla piscina condominiale
Venduta non arredata.
Contesto
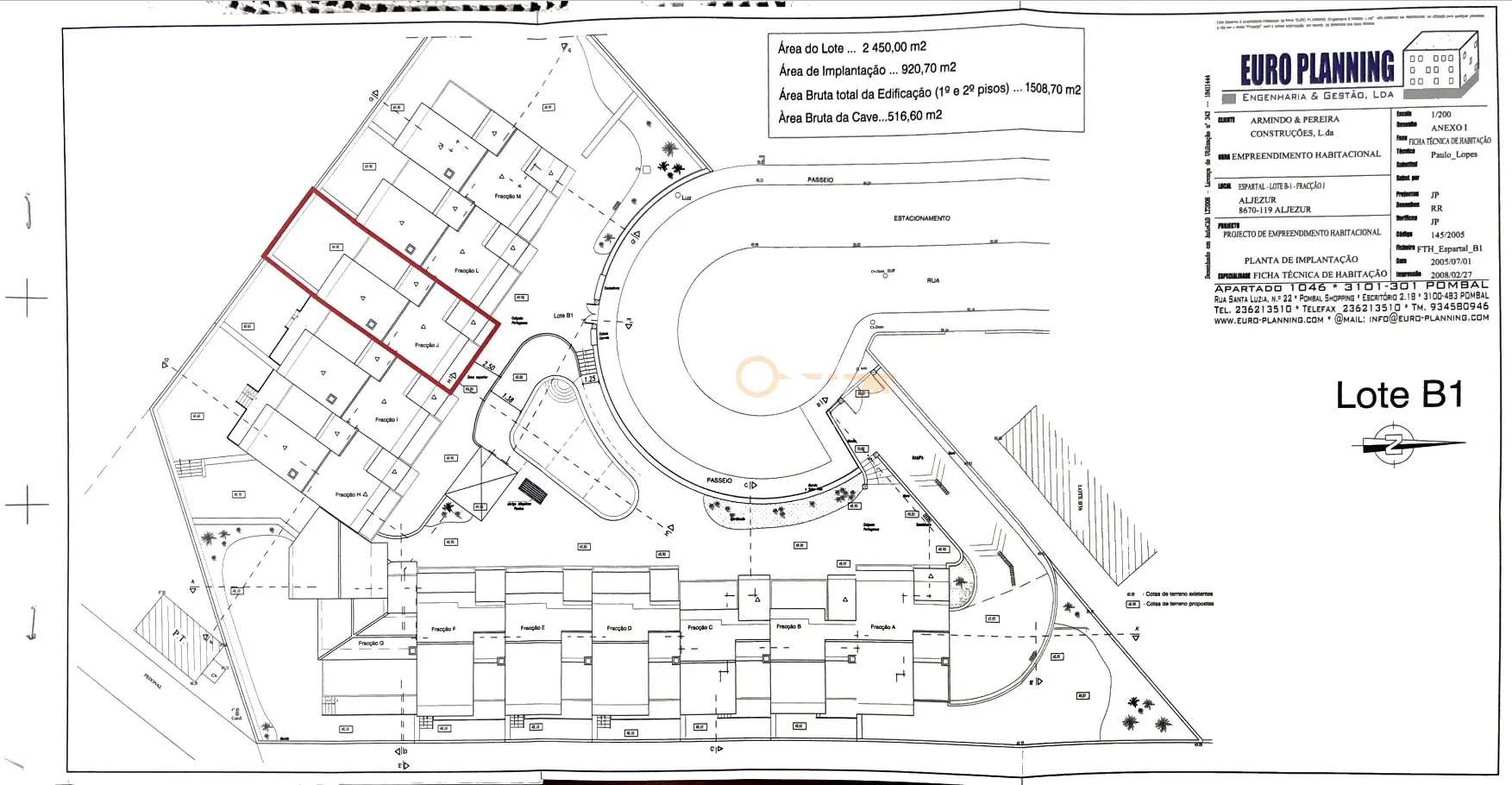
Situata nella tranquilla e raffinata zona di Espartal, ad Aljezur
A pochi passi dalle spiagge di Monte Clérigo e Amoreira, nel cuore del Parco Naturale della Costa Vicentina
A 5 minuti dal centro di Aljezur
20 minuti da Lagos
E poco più di un’ora dall’aeroporto di Faro
Punti di Forza
Ambiente naturale protetto, perfetto per surf e trekking
Ottima esposizione solare
Condominio discreto e ben mantenuto
Ottime condizioni e recente tinteggiatura esterna
Alto potenziale di redditività per affitto stagionale o annuale
Ideale come residenza o investimento
Un’opportunità rara per vivere nel cuore della Costa Vicentina.
Non lasciartela sfuggire!
Tipo di immobile
Casa a schiera
Typologie
3 Camere
Obbiettivo
Vendita
Stato
Usato
Prezzo
418.000 €
Anno di costruzione
2008
Paese
Portugal
Distretto
Faro
Regione
Aljezur
Comune
Aljezur
Zona
Espartal
Erik Heijselaar
+351 912 547 448
Chamada para a rede móvel nacional
Voglio essere contattato
Data
Tempo
Nome
Inserisci un nome
E-mail
Inserisci una email
Si prega di inserire un indirizzo email valido
Contatto
Inserisci il tuo numero di telefono
Messaggio
Richiedi maggiori informazioni, senza alcun impegno su questo immobile VM1074
Ho letto e accetto i termini e le condizioni stabiliti.
Informativa sulla privacy
Per completare questa operazione è necessario leggere e accettare le nostre condizioni.
Codice
Inserite il codice mostrato nell'immagine.
Inviare
Caratteristiche generali
Generales
Vani
Vani
Superficie
Piano
Muri
Massimali
Osservazioni
Dintorni
Facilitá
Domotica
Energie Rinnovabili
Vedi anche
Aljezur, Carrapateira
520.000 €
Nuova villa con vista mare nel villaggio di Carrapateira
520.000 €
Nuova villa con vista mare nel villaggio di Carrapateira
Aljezur, Carrapateira
3
3
1
361 m²
A. Bruta
143 m²
A. Utile
Contactar
Aljezur, Vale da Telha
750.000 €
Villa con 6 camere da letto e piscina - Vale da Telha, Aljezur
750.000 €
Villa con 6 camere da letto e piscina - Vale da Telha, Aljezur
Aljezur, Vale da Telha
6
5
1
312 m²
A. Utile
1250 m²
A. Terreno
Contactar
Aljezur, Vale da Telha
399.000 €
Casa indipendente con giardino e possibilità di piscina, Aljezur
399.000 €
Casa indipendente con giardino e possibilità di piscina, Aljezur
Aljezur, Vale da Telha
3
2
1
120 m²
A. Utile
500 m²
A. Terreno
Contactar
Altre proprietà +
Siamo disponibili per aiutarvi
Voglio essere contattato
Data
Tempo
Nome
Inserisci un nome
E-mail
Inserisci una email
Si prega di inserire un indirizzo email valido
Contatto
Inserire il numero di telefono
Messaggio
Li e aceito a
Informativa sulla privacy
Per completare questa operazione è necessario leggere e accettare le nostre condizioni.
Codice
Inserite il codice mostrato nell'immagine.
Inviare
O que é a pesquisa responsável
Esta pesquisa permite obter resultados mais ajustados à sua disponibilidade financeira.